HOME
CONTACT
STUART EMMONS
BUILDING PROJECTS
PLANNING PROJECTS
EMMONS DESIGN
HOMELESSNESS
HOUSING
NORTH COAST
VISIONS AND PLANS
SCHOOLS
Site Plan
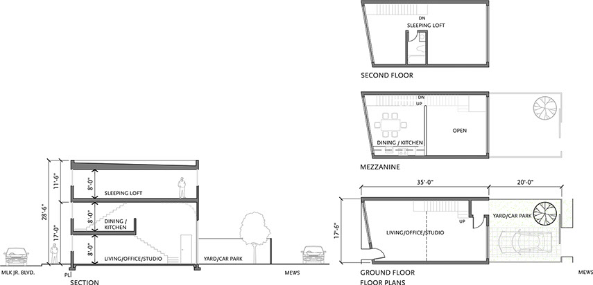
Live/work unit
Townhouse - family affordable
Sketch from Martin Luther King, Jr. Boulevard
<
>
Coretta Mews
Coretta Mews was designed for the Grant warehouse site on Martin Luther King, Jr. Boulevard in Portland. The project had two goals: to help activate Martin Luther King, Jr. Boulevard, and provide affordable housing to a gentrifying neighborhood. There are 24 housing units: 12 creative 1384 sf live/works on Martin Luther King, Jr.. Boulevard and 12 affordable family 1137 sf townhouses on the east side of the site. A Mews (alley) runs the full length of the site from north to south to give vehicle and pedestrian access to all units. Live/works on MLK can also be accessed from the MLK sidewalk.
Crater Lake,
Oregon
Similar section for Live-Work units
Electric ArtBlock interior, Venice, CA
(Stuart Emmons project architect w/ Koning Eizenberg)
Storefront to activate streets
Backyard
Backyard
Mews in SF designed by Don Solomon
Existing Site
<
>
INFLUENCES, INSPIRATIONS