HOME
CONTACT
STUART EMMONS
BUILDING PROJECTS
PLANNING PROJECTS
EMMONS DESIGN
HOMELESSNESS
HOUSING
NORTH COAST
VISIONS AND PLANS
SCHOOLS
Proposed Street - Green Street
Existing Street at 21st Street looking West
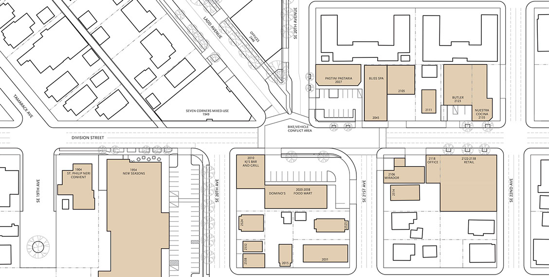
Existing District - key street intersections
Existing Street - Driveways
Existing Street - Buildings
Proposed Street Sections to maximize Green Street
<
>
Division Street
Community Bulletin Board
Bike Box
Stormwater management
Stormwater management
Roses on Division
Sidewalk - Alberta Street, Portland
Les Deux Magots, Paris
Sidewalk, NW 21st, Portland
Streetscape/townhouses, Philadelphia
Sidewalk plaza, North Mississippi, Portland
Sidewalk Cafe
Safe streets for kids
<
>
INFLUENCES, INSPIRATIONS
COMMUNITY OUTREACH
Stuart talking and listening to community members during design process.
Division Street has great neighborhoods around it, and some good retail, but the street, especially around the ‘Seven Corners’ area, was a wide, inhospitable street with strip mall buildings in some places. The water bureau needed to run a new sewer down the street, and the community and City believed this to be the perfect time to address the quality of Division Street, and make it far more sustainable as well, with a large tree canopy and all public stormwater managed naturally in bioswales rather than a storm sewer. ‘Pro-time’ drive lanes for rush hour traffic promoted by transportation engineers made existing crosswalks long and dangerous, and added to impervious surfaces in the district. After much community pressure, pro-time lanes were eliminated in this area and bioswales and pedestrian friendly crosswalks were added. Bikes were also a consideration, as there was a main bike route from SE Portland going into center city through the Seven Corners area and Ladd’s addition. The new plan was designed to increase bike safety as well.
The Division Street plan was designed to tame an auto oriented street and make it more of a neighborhood street that was pleasant to be on for pedestrians and bikes, and pleasant to live near.
Tatoosh Range,
S. of Mt. Rainier,
Washington