HOME
CONTACT
STUART EMMONS
BUILDING PROJECTS
PLANNING PROJECTS
EMMONS DESIGN
HOMELESSNESS
HOUSING
NORTH COAST
VISIONS AND PLANS
SCHOOLS
Model - bird's eye view
Model - at entry
Model - looking in window
Model - looking past Kitchenette to Living area
Model - from entry
Model - from entry
Model - from entry 2
Potential exterior concept
<
>
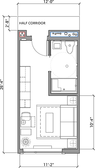
ImHomeToo™
ImHomeToo™ is a 265 SF modular unit that can be coupled and stacked with other units. Designed for urban individuals experiencing homelessness who are in need of services, ImHomeToo provides a living unit that is warm, safe and dry and, gives dignity by providing residents with a private self-supporting unit. Units are fully accessible, and include a full bath and kitchenette. There is a lot of natural light from the large window. The unit’s heat pump system provides very efficient heating and cooling. ImHomeToo units can be also be used for students, senior housing or urban pied-à-terres.
All the piping is on the corridor side of the unit for ease of access and rapid hookups to building systems. Corridors are finished on site. Unit interiors are completely finished when delivered to a site.
ImHomeToo projects can be built up to 6 stories (5 stories shown at left), with ImHomeToo units installed on top of a concrete first floor. The first floor contains building support and preferred program needs. Please click on the Book icon below to see more information.
Eagle Creek,
Columbia Gorge,
Oregon